Vivienda 2 niveles - 285 m²

Esta es una hermosa vivienda unifamiliar de dos niveles terminaciones de la más alta calidad.

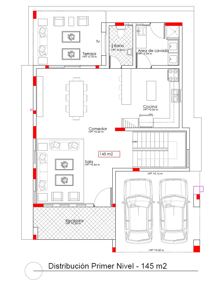
Sobre este Proyecto

Hermosa vivienda unifamiliar de dos niveles con 285 m² de construcción y 259 m² de terreno.

Terminación de primera. Madera preciosa en caoba o roble, piso en porcelanato europeo, ventanas corredizas en aluminio y cristal.

Características

  • 285 m2 de construcción
  • Marquesina para dos vehículos
  • Galería
  • Amplia Sala
  • Comedor
  • Cocina
  • Área de Lavado
  • 3 habitaciones
  • 3.5 baños
  • Oficina y Balcón
  • Terraza Abierta Techada

¿Te interesa saber más?

Diseño

Arq. Ana Mercado

I@am.arquitecturaeinteriores